8300 Tapolca, 0311/17. hrsz. • +36 30 613 4344 • info@alaphaz.hu
Modern otthon Keszthely szívében, pár lépésre a Balatontól.
Az első emeleti lakás a Petőfi utcai új társasházban eleganciát, nyugalmat és kényelmet kínál — ideális választás azoknak, akik szeretik, ha a városi élet és a természet közelsége egyszerre van jelen.
Az ingatlan Keszthely belvárosában, a Petőfi utcában található, mindössze néhány perc sétára a Helikon Parktól és a Balaton-parttól.
A környék történelmi értékű: a Helikon Park 1883-as kialakítása után ez a városrész gyorsan felértékelődött, ahol előbb elegáns villák, majd polgárházak és kisebb városi villák épültek.
A telek közel vízszintes, környezete teljesen beépített. Az utcában a házak oldalhatáros, előkert nélküli beépítéssel állnak. A társasház épülete a környező házak mérete és stílusa között átmenetet képez, így harmonikusan illeszkedik a városszövetbe.
A nyugati oldalon tetőtér-beépítéses családi ház, a keleti oldalon soklakásos társasház található. A telekre gépkocsival a nyugati oldalról lehet behajtani, itt 1 felszíni parkoló, valamint 4 fedett garázs készült.
A központi lépcsőház az utcáról és az udvarról is megközelíthető, a hátsókertben pedig összefüggő zöldfelület kerül kialakításra, többszintes növényzettel.
Az épület utcafronti részén, a földszinten 2 db iroda kapott helyet, az emeleten és a tetőtérben 1-1 lakás, a hátsó szárnyban pedig 4 állásos garázs, további 2 lakás és a gépészeti helyiség található.
A jelenleg meghirdetett 1. emeleti lakás tágas, világos terekkel és átgondolt elrendezéssel rendelkezik, ideális választás mind állandó lakhatásra, mind befektetésre.
Telek területe: 998 m²
Építési övezet: Lk-2 (kisvárosias lakóövezet)
Településképi besorolás: Városközponti karakter, határos a Történeti villanegyed karakterrel
Fő szerkezeti elemek
Alapozás: beton sávalapok
Lábazat: 30 cm zsalukő fal, hőszigetelve, téglaszelet burkolattal
Teherhordó falak: 30 cm Porotherm X-therm tégla
Áthidalók: Porotherm elemmagas és A10 típusú áthidalók
Födém: Leier előregyártott födémelemek
Lépcsők: két lépcsőház készül
Tetőszerkezet: „L” alakú nyeregtető, 45°-os hajlásszöggel, az utcai oldalon oromfallal, udvari szárnyon kontyolással
Tetőfedés: hornyolt, egyenes vágású, natúr színű égetett agyagcserép
Belső és külső szerkezetek
Válaszfalak: 10 cm Porotherm válaszfaltégla
Vízszigetelés: a földszinti falak és padozat alatt 2 réteg bitumenes vastaglemez
Hőszigetelés:
padlóban 10 cm XPS
tetőtérben 25 cm ásványgyapot
lábazaton 10 cm XPS
homlokzaton 15 cm EPS
koszorúk előtt +5 cm XPS
Padlóburkolatok: greslap és laminált parketta, helyiségenként kijelölve
Falfelületek: vizes helyiségekben kerámia falburkolat, máshol diszperziós festés vagy fa/gres lábazat
Külső nyílászárók: műanyag, 3 rétegű hőszigetelt üvegezéssel, aranytölgy színben
Belső ajtók: CPL, laminált felületű, utólag beépíthető ajtók
Homlokzat: finomszemcsés dörzsölt vakolat, világos simított festett felületekkel; a lábazat, pillérek és kémények bontott tégla szelettel burkoltak
Bádogos szerkezetek: alumínium csatornák, szegélyek
Térburkolatok: beton térkő
Kerítés: acél pálcás kerítés + automata kétszárnyú nyílókapu
Kiegészítő építmények
Garázs: 4 db fedett, három oldalról zárt gépkocsi-beálló
Felszíni parkoló: 1 db
Tároló: minden lakáshoz külön zárt tároló (a lakás vételára nem tartalmazza)
Az épületben levegő–vizes hőszivattyús fűtési rendszer készül, minden rendeltetési egységhez külön hőszivattyúval.
A kültéri egységek az udvarban, a garázsokkal szemben helyezkednek el.
A használati melegvíz előállítása is a hőszivattyúk segítségével történik.
A központi gépészeti helyiségben kap helyet a rendszer összes beltéri egysége.
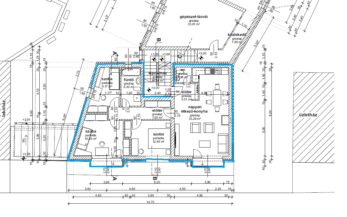
Szoba: 15,00 m² (laminált parketta)
Szoba: 9,17 m² (laminált parketta)
Szoba: 12,45 m² (laminált parketta)
Előtér: 7,60 m² (kerámia)
Fürdő: 6,30 m² (kerámia)
Nappali–étkező–konyha: 33,29 m² (kerámia)
WC: 1,96 m² (kerámia)
Összesen: 88,78 m²
A Petőfi utcai társasház első emeleti lakása a történelmi városrész szívében, mégis csendes környezetben kínál modern, energiatakarékos otthont.
A gondosan megtervezett homlokzat, a minőségi anyaghasználat és a hőszivattyús gépészet tökéletes egyensúlyt teremt a városi elegancia és a Balaton-felvidéki hangulat között.
Lakás szintje: 1. emelet
Lakás vételára: 133 170 000 Ft
Telek területe: 998 m²
Érdeklődés: +36 70 479 2126



