8300 Tapolca, 0311/17. hrsz. • +36 30 613 4344 • info@alaphaz.hu
A Panoráma Lakópark 4 lakásos kertkapcsolatos házai modern, átgondolt megoldást kínálnak azok számára, akik a kertvárosi élet nyugalmát keresik, mégis egy jól szervezett, rendezett környezetben szeretnének élni.
Minden lakóegység saját kertkapcsolattal rendelkezik, így a mindennapok része lehet a szabadtéri pihenés és a privát élettér.
Ezek a házak ideális választást jelentenek azoknak, akik a családi házas életérzést részesítik előnyben, ugyanakkor fontos számukra a modern kialakítás, a praktikus elrendezés és az élhető környezet.
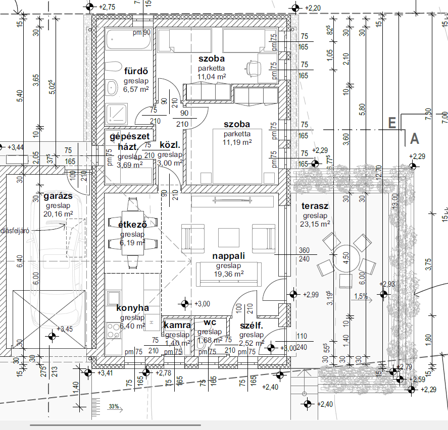
szélfogó
wc
kamra
konyha-étkező-nappali
közlekedő
fürdő
gépészet-háztartási helyiség
szoba
szoba
2,52 m2
1,68 m2
1,4 m2
31,95 m2
3 m2
6,57 m2
3,69 m2
11,04 m2
11,19 m2
greslap
greslap
greslap
greslap
greslap
greslap
greslap
parketta
parketta
garázs
20,16 m2
greslap
terasz
23,15 m2
greslap
Érdeklődés: +36 70 479 2126
*2026. február 28-ig aláírt adásvételi szerződés esetén!
