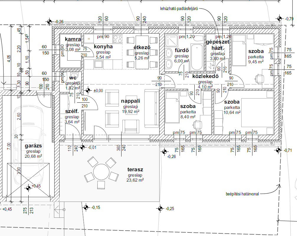
"A" jelű lakóház
helyiség neve
szélfogó
wc
kamra
nappali
konyha-étkező
közlekedő
fürdő
háztartási helyiség
szoba
szoba
szoba
területe
5,46 m2
1,82 m2
1,26 m2
18,1 m2
12,62 m2
4,1 m2
4,58 m2
5,02 m2
8,4 m2
10,64 m2
9,45 m2
padlóburkolata
greslap
greslap
greslap
greslap
greslap
greslap
greslap
greslap
parketta
parketta
parketta
összesen: 81,45 m2
fűtetlen belső terek
garázs
20,16 m2
greslap
