8300 Tapolca, 0311/17. hrsz. • +36 30 613 4344 • info@alaphaz.hu
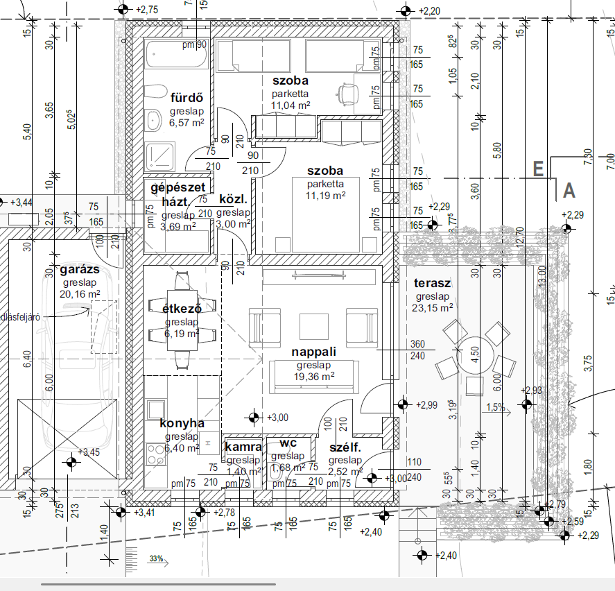
szélfogó
wc
kamra
konyha-étkező-nappali
közlekedő
fürdő
gépészet-háztartási helyiség
szoba
szoba
3,64 m2
1,82 m2
3,08 m2
28,8 m2
4,1 m2
6,45 m2
3,77 m2
11,04 m2
11,19 m2
greslap
greslap
greslap
greslap
greslap
greslap
greslap
parketta
parketta
garázs-tároló
20,68 m2
greslap
terasz
29,52 m2
greslap
