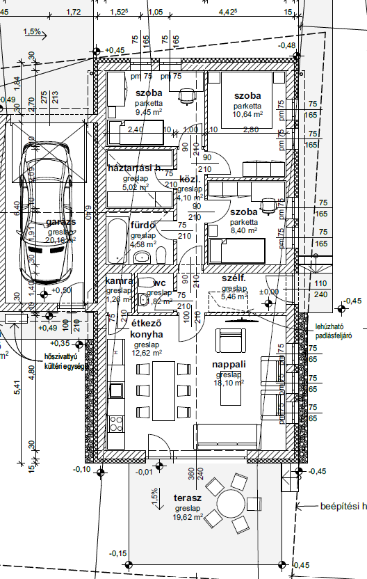
Keszthely Kertváros - Panoráma Lakópark - 2 lakásos lakóház - A lakóház

"A jelű lakóház" 


helyiség neve

szélfogó 

wc 

kamra 

nappali

konyha-étkező

közlekedő

fürdő 

háztartási helyiség

szoba

szoba

szoba


területe

5,46 m2

1,82 m2

1,26 m2

18,1 m2

12,62 m2

4,1 m2

4,58 m2

5,02 m2

8,4 m2

10,64 m2

9,45 m2

padlóburkolata

greslap

greslap

greslap

greslap

greslap

greslap

greslap

greslap

parketta

parketta

parketta

összesen: 81,45 m2
 


fűtetlen belső terek

garázs


20,16 m2


greslap


fűtetlen külső terek

terasz


19,62 m2


greslap


A ház ára: 142.000.000 Ft


Tervezett átadás: 2026. ősz


 

8300 Tapolca, 0311/17. hrsz. • +36 30 613 4344 • info@alaphaz.hu